Swasdee Hotel & Commercial Centre

Location: Vasundhara, Greater Noida, Uttar Pradesh
Category: Hospitality
Area: 1.0 acre
Client: Chandra Laxmi Group
Architect: ModarchIndia, Noida
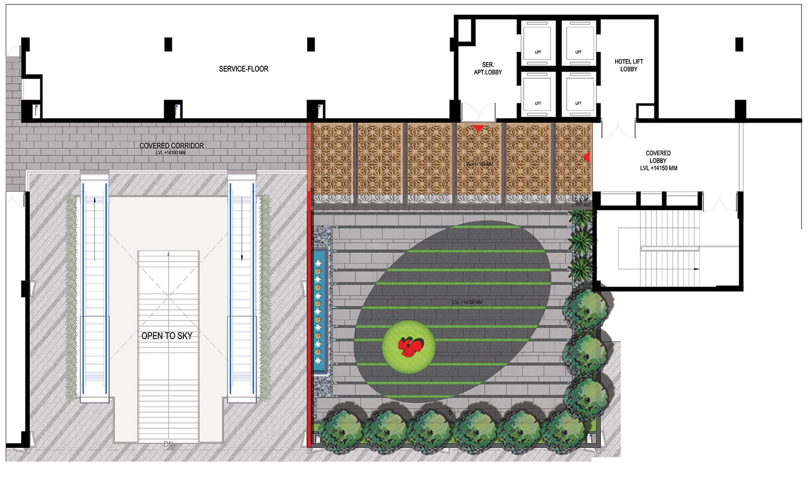
“A small cozy terrace emphasized by a water feature with jet nozzles backed by an accent wall. An abstract sculpture sits at the centre surrounded by ornamental plumeria (champa) trees with views to the city can gives you a feeling of warmth that not even a cup of coffee gives in winters.”

Portfolio